Leave a Message

Thank you for your message. We will be in touch with you shortly.

Explore Our Properties

Property Description

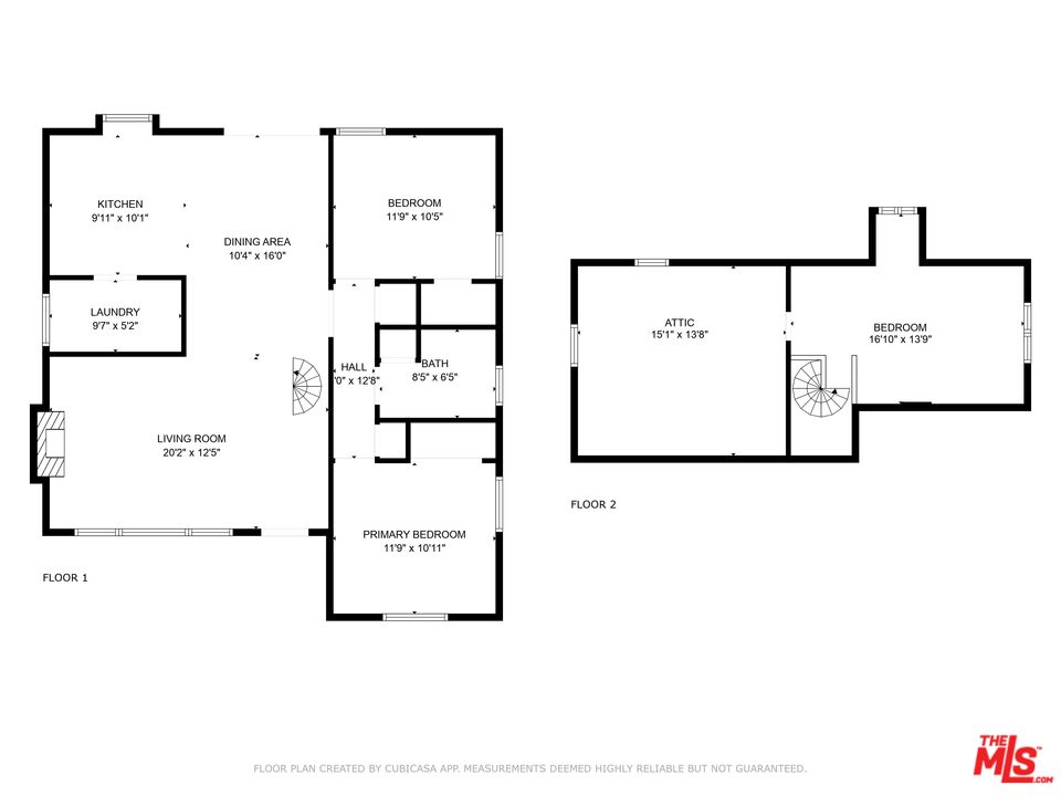
Endless potential in prime location! Discover the charm of this adorable 1,221 sqft home nestled on a 5,634 sqft lot in the heart of Mar Vista. Whether you're looking for a cozy starter home, a canvas to create your dream estate, or your next investment project, this property offers endless opportunities. Upon entering the home, you're greeted by an abundance of character, highlighted by a welcoming living room with a cozy fireplace that seamlessly flows into the dining area and a kitchen complete with a walk-in pantry. Rounding out the first floor are two nicely sized bedrooms and a full bathroom with tub. A stylish spiral staircase leads to the third bedroom - a space that serves as the ideal starting point for a potential second-story addition. Envision expanding upward to capture stunning ocean views while adding valuable space and functionality to the home.The private backyard opens to a patio area perfect for outdoor dining as well as a generous grassy lawn. A detached bonus room (approximately 210 sq ft) offers flexible use as a home office, creative studio, or guest retreat - and presents a clear opportunity for ADU conversion. One of the standout features of the backyard is the elevated "Zen" zone, a peaceful grassy nook beneath the shade of a mature avocado tree. There is also a double garage with alley access, adding to the ADU potential of the bonus room, which shares a wall with the garage. Located in a prime part of Mar Vista, you're just a stone's throw away from the new Beethoven Market and only minutes from the beach. Remodel, expand, flip, or build new - the possibilities are endless. Don't miss your chance to unlock the full potential of this rare gem! Fireplace is considered decorative. No repairs or credits will be given.

Overview

Property Status
Sold
Lot Size
5,634 Sq.Ft.
MLS ID
25540173
Property Type
Residential
Year Built
1943

Features & Amenities

Architecture Styles
Traditional
View Description
None
Stories
2
Pool
None
Parking
Garage - 2 Car
Heat Type
Floor
Air Conditioning
Wall/Window
Laundry Room
Inside
Fireplace
Living Room
Appliances
Dryer, Washer, Refrigerator, Range/Oven
Sales Price
$1,650,000
Zoning
LAR1

Downloads

3456 Beethoven St

Schedule a Tour

We would love to help you see this beautiful home! As a full-service brokerage, we can help you tour. Please submit an offer, and answer questions about the buying process.

Thank you

for your interest in 3456 Beethoven St, Los Angeles, CA 90066

3456 Beethoven St
Navigate

Follow Us On Instagram